CROSS HOUSE
Μονοκατοικία 150 τ.μ. | Κηφισιά, Αθήνα
Τύπος: Μονοκατοικία
Τοποθεσία: Κηφισιά, Αθήνα
Εμβαδόν: 150 τ.μ.
Κατάσταση: (Μελέτη)
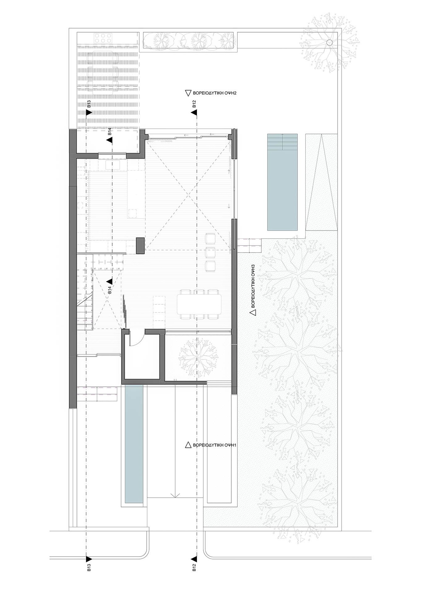
Η συνθετική πρόταση του Cross House εστιάζει στην καθαρότητα των όγκων και τη στιβαρότητα του εμφανούς σκυροδέματος. Η κατοικία αναπτύσσεται σε τρία επίπεδα (150 τ.μ.), με τον κτιριακό όγκο να λειτουργεί ως ένα ειλικρινές κέλυφος που προστατεύει την ιδιωτικότητα, ενώ ταυτόχρονα οργανώνει τη λειτουργική ροή των 90 τ.μ. του ισογείου και των 60 τ.μ. του ορόφου.


Η πίσω όψη αποδομείται μέσω μεγάλων ανοιγμάτων, καταργώντας τα όρια μεταξύ εσωτερικού και υπαίθριου χώρου. Ο κήπος, η πισίνα και το BBQ αποτελούν οργανική προέκταση του καθιστικού, μετατρέποντας την αυλή σε έναν ζωτικό χώρο καθημερινής εκτόνωσης και ηρεμίας.














